最新消息:位于城南的纯新盘翡翠天际,正在申领销许,马上开盘!首次开盘将推出1、4、7、10、11号楼,共420套精装房源,建筑面积约为113、130、143㎡,区域限价3.5万/㎡!
值得注意的是,目前距离该项目约1公里的两个次新房小区,金隅紫京府二手房挂牌均价5.4万/㎡,禹洲吉庆里二手房价格在4.7万/㎡,倒挂近2万/㎡!价格优势明显,对买房人而言,不失为是一个福利盘,升值潜力值得期待!

金隅紫京府二手房价格

禹洲吉庆里二手房价格
01
倒挂近20000元/㎡!城南纯新盘报名进行中,限价3.5万/㎡!
翡翠天际目前已公开示范区,预计月底开盘。据了解,项目首推1、4、7、10、11号楼凤台新城国际二手房,共420套精装房源,建筑面积约为113、130、143㎡,预计均价35000元/㎡,具体以销许价格为准。

楼栋分布图
受到政府限价影响,翡翠天际最终均价不会突破35000元/㎡,目前正在申领销许,很快就开盘!
值得关注的是,项目所在的安德门片区,除此之外,已经快2年没有新房供应,周边二手房挂牌价最高甚至达到5.4万/㎡以上,相比新房倒挂近20000元/㎡!可以说是买到就是赚到!

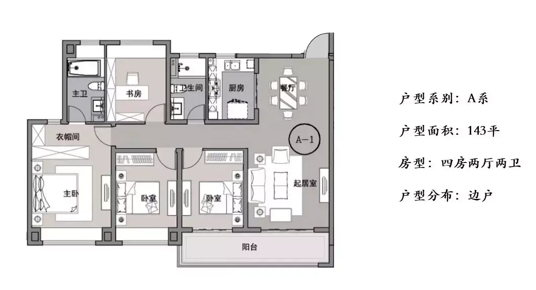
翡翠天际的户型有113、130、143㎡,基本能满足刚需、改善不同买房人的需求。
户型图如下:



样板间实景图:


113㎡(三室两厅两卫)实景图


143㎡(四室两厅两卫)实景图
在房型设计上,从三房到四房,全部都有,更是做到三开间以上朝南,阔景双阳台,整体舒适度很高凤台新城国际二手房,满足买房人对于高品质生活的追求。
02
坐拥主城核心,与河西仅一街之隔
翡翠天际位于凤台南路与雨花南路交口,更是新街口、南部新城、河西CBD主城黄金三角交汇处,与河西中部仅隔着一条凤台南路,可以说是河西中部准后花园区域。

区位图
>>>>轨道交通
距离安德门地铁站直线距离约700米,目前1号线与10号线已经通车,四站直达新街、奥体东、南京南站。另外还规划7、8号线,未来出行更加便捷。

倘若自驾出行,有凤台南路、雨花南路、梦都大街大街主线连接,未来从这里开车从雨花南路一路向西,就可以开上梦都大街,直达河西中部多个地方。
>>>>商业配套
虹悦城、中央商场、金奥国际购物中心、楚翘城、雨花客厅、中华门规划的南京太古里项目等商业体均在约3公里以内,生活便利,出门就可以漫步雨花南路繁华街区。

>>>>教育医疗
靠近江苏警官学院,区域内教育资源集中,形成良好向学氛围。在医疗方面,南京市雨花医院、江苏省第二中医院、南京明基医院、南京建邺医院等侍立在侧。

03
万科、保利、金地、建发携手,打造品质住宅
翡翠天际是由万科、保利、金地、建发四家开发商携手打造,这里不得不提下翡翠天域的装修标准。项目的精装修配备地暖、中央空调、新风系统,并且都是与诸如日立、方太、科勒、摩恩等国内外品牌的合作,品牌在一定程度上保证了房子的品质。

小编实地走访了旁边的二手房小区龙福山庄,房屋建造于2001年,室内铺设地板、配柜式空调,无地暖、无新风,单价达到34054元/㎡;再对比另外一套在售房源,带地暖,挂牌单价37006元/㎡。
相比翡翠天际的精装修住宅,限价3.5万/㎡,地暖、新风系统、中央空调全配,对于买房人而言,价格优势凸显!


从精研建筑到家居的每一细节,翡翠天际真是做到了极致。如为飘窗所选用的三玻两腔玻璃,相较传统单腔隔音隔热效果更佳,在寒冷的冬天更能锁住室内的热度,保证热量不流失。

综合翡翠天际的大致情况,位于主城区与河西之间,轨道交通便捷;纵观城南的商业、教育、医疗等配套,各项设施完善;从住宅本身来看,大品牌+高品质,性价比高;从价格出发,区域限价3.5万/㎡,倒挂近2万/㎡,这不失为一个好的选择。