欢迎关注设计馆:了解家居装修,获取家居装修超级秘诀!
家居装修是一个无底洞。 为了省钱,装修家里的时候,我会在网上找几张效果图,然后让家装工人直接根据效果图进行操作。 能取得疗效吗?

答案是不。 最有可能的做法就是,家装工人会向你冒充“四种不同”的家装效果,把你的家当作你的教材,除非你自己就是家装工长,对家装行业非常了解。很好,并且有很多时间。 。
1、装修工人精力有限:
工艺上有特色。 工人擅长的是施工操作,而设计师擅长的是家装功效的把控。
如果只有疗效图,家装工作者需要考虑很多细节!

工人不是设计师,没有设计专业知识。 即使他们思考某些事情,他们也可能是错的。 但工人的精力有限,按部就班地工作效率更高。 不可能给你展示效果图,在施工前思考一下。 除非你付给工人的价格已经包含了“设计费”,但如果你有这个资金,为什么不直接聘请专业设计师呢?
2、装修工程较多:
首先,家装工程有很多,比如水管工、泥水工、木匠、油漆工等,每个工程都是由不同的人完成的,每个人在不同的时间工作。 他们之间缺乏沟通。 联系。

如果只有治疗效果图职场装修效果图职场装修效果图,每个工作人员对治疗效果图都会有自己的理解,如果他们后来给你补充一些意见(或者偷懒一点),这里就差一点了,一个那里差一点,一不小心就会变成“四异”。 。
3、效果图中看不到材质:
除非是转租的风格,只是铺瓷砖、粉刷墙壁,否则家居装修需要的材料很多。
在功效图上,你根本看不出方案用了什么材料,尤其是背景墙的设计,还有一些比较前卫的设计,比如金属踢脚线、柔光砖、金属装饰条等。 ,看图片很难看出那些详细的资料。

4、效果图中看不到规格比例:
效果图只能展示家居装修的大概外观,上面的规格和比例完全未知。 工人们只能看图就地行动。
例如,天花板上的柜子应该多宽多高,筒灯和灯管应该放在哪里? 如果吊顶形状和规格的比例不对,安装后的吊顶就会很别扭; 如果射灯位置不对,也会影响背景墙的采光和洗墙效果。

比如背景墙的形状——像一个不对称的形状,这个形状应该采用什么比例才能显得和谐美观?

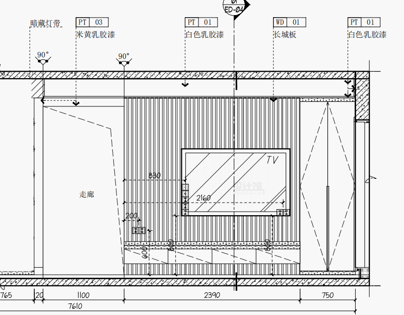
5、施工图是工人看到的:
想要工人产生疗效,就必须有施工图!
效果图主要表达设计风格,向居民展示家居装修的大概效果。 主要用于确定家居装修风格和设计意图;

施工图主要表现规格、材料和工艺。 他们向工人展示如何施工,并让他们知道每个地点使用什么材料、使用什么规格的材料以及其他施工细节。

所以只给家装工人提供家装效果图。 他们可以根据图纸进行仿家居装修。 然而,家庭装修是一个工程多、周期长的过程。 如果仅以效果图作为参考,由于材料和尺寸的差异,加上不同的工人对功效图的理解不同,最终的家装效果可能与效果图并不完全一致。
因此,想要你的家居装修有效果,就不要让工人去制定治疗方案。 你花了钱,却达不到疗效。

扫描二维码添加设计姐姐视频账号